张总是从事进口食品批发与零售业务,经过多年的努力,终于如愿买了一套自己称心如意的别墅,对于别墅的装修是亲力亲为,生意上尽量的交给小孩和下属去打理,自己全身心的投入到别墅的装修。

私家影院是客户比较为看重的一块,从前期的沟通,规划到调整方案,到屡次修改方案,我们都沟通过很多轮,从当初的电动幕,前三做嵌入式协顶设计

到后面结合了现场实际情况以及考虑卡拉OK的娱乐空间的要求,影音空间变大,我们的方案如下

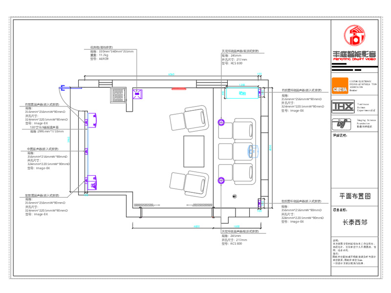
影音室整体面积在30平方左右,由于空间变大,采用了两排影院沙发规划,这样影院的感觉也会更专业,同时卡拉OK的活动空间也绰绰有余。

整体别墅影音室灰色设计,影音娱乐室的定位,为了合理的控制混响时间,墙面没有做过多的吸音处理,采用的是凹凸感的硅藻泥,配合两排强吸音的沙发做声学修饰。

整体零电影院采用的是杜比全景声5.1.2来规划的,影院用的是拥有40多年历史底蕴的美国earthquake大地震扬声器,均嵌入式设计,配合12寸的超重低音,看电影的爆发力。立体感都很带劲。

卡拉OK系统采用的是拥有20多年历史底蕴的美国Soundpower声威,10寸的全频专业音箱,Soundpower也是超级女声,快乐男声总决赛的御用品牌,卡拉OK外置式设计,唱歌的中高频会直接高亢,高频的衰减也可以做到更小,整体的音质和综合性要比都较高
投影仪采用的是爱普生,具性价比的一款4K投影机TW7000,配合130寸定制窄边透声幕,这样看起来也更简洁,更有立体感。
张总别墅从开工到完工花了近两年的时间,从家庭影院完工的那一刻,他高歌了几曲,也也邀请了几个朋友来家里做客,对整体的音效和我们的服务都很满意,还给我介绍了好几个客户,一次生意交个朋友,用我们的专业和服务去打动客户,相信我们都会有更大的收获。
影音室设备清单:

美国Earthquake大地震EWS800

后环绕Earthquake大地震EWS600

低音炮:大地震FF12

爱普生TW7000
卡啦OK清单:

卡拉OK音响:美国Soundpower声威KX510P

前级效果器:Soundpower声威KX-1000P

后级放大器:Soundpower声威 MA 900P

无线话筒:Soundpower声威 U9P
配置:
影院前三采用的是美国Earthquake大地震EWS800
后环绕Earthquake大地震EWS600
天花:R650
低音炮:大地震FF12
投影机:爱普生TW7000
幕布:130寸窄边画框编制透声幕
卡拉OK设备:
音响:美国Soundpower声威KX510P
前级效果器:Soundpower声威KX-1000P
后级放大器:Soundpower声威 MA 900P
无线话筒:Soundpower声威 U9P
点歌系统:视易D68M